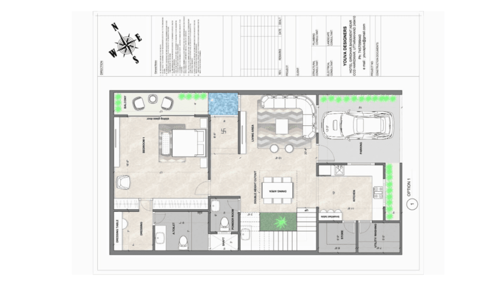
If you’re dreaming of a beautiful home that’s modern, budget-friendly, and comfortable, then this 1500 Sqft duplex house plan might be perfect for you! This plan includes a stylish open kitchen, spacious living areas, and a relaxing balcony — all within 1500 square feet.
Total Area – 1500 Sqft
- 2 floors: Ground Floor + First Floor
- Perfect for small to medium families
- Modern layout with open spaces and functional rooms
1. Living Room
- Spacious area near entrance
- Can fit sofa set, TV unit, center table
- Ideal for guests and family gatherings
2. Open Kitchen with Dining Area
- Modern open kitchen concept
- Space-saving and stylish
- Dining table space next to the kitchen
3. 1 Bedroom
- Suitable for elders or guests
- Located on the ground floor for easy access
4. 1 Attached Bathroom
- Connected to the bedroom
- Can also be used as a common toilet
5. Staircase Inside
- Stylish and compact staircase leading to the first floor
First Floor Layout
1. 2 Bedrooms
- One master bedroom and one regular bedroom
- Both are spacious with good ventilation
2. 1 Common Bathroom
- Easily accessible to both bedrooms
3. Study/Work Area
- Small corner for study table or home office setup
4. Balcony
- Open, airy, and perfect for morning tea or evening relaxation
- You can also keep plants and create a small garden space
also read.
Approximate Cost
| Construction Type | Approx Rate (per Sqft) | Total Cost (Approx) |
|---|---|---|
| Standard Quality | ₹1,500 | ₹22.5 Lakhs |
| Mid-Range Quality | ₹1,800 – ₹2,000 | ₹27 Lakhs – ₹30 Lakhs |
| High Quality | ₹2,200 – ₹2,500 | ₹33 Lakhs – ₹37.5 Lakhs |
Final Words
A 1500 Sqft duplex house with an open kitchen and balcony is perfect for families who want a stylish home in limited space. You get comfort, functionality, and a modern look — all at once!
Your dream home is closer than you think!
